748 E Broadway

Mount Pleasant VE, Vancouver East

RENTED

$2,000/mth


Bedrooms: 0

Bathrooms: 1

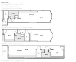
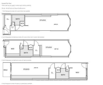
Living Area: Starting at 400


BRAND NEW Studio & Pseudo 1 Beds in The Stinson Block!

Beautiful Brand New Studio Suites for RENT! Pet-Friendly, Never Been Lived in!

Available Early Summer! If you would like to be on the list for the first viewings, please contact 778-881-5233

The Stinson Block is a forward-thinking project of eighteen brand-new suites in a newly constructed building clothed with the restored, original street frontage. Each suite includes high-end stainless steel appliances (fridge, microwave, stovetop, dishwasher), in-suite washer / dryer , in-suite storage and large windows. Balcony, patio and Juliette balcony options are available in studio and pseudo one-bed layouts. Bike storage and storage lockers are available in the building. Steps to Main Street, Fraser Street and Kingsway. Walk to many of Vancouver's best restaurants, shops, cafe's and more! Transit located right outside your door!
Please note that a ONE-YEAR LEASE is REQUIRED, please do not inquire for short term. Suite is unfurnished and utilities are an additional cost.

Starting at $2000/month


01515_gkxccootdpz_0dp0cm_1200x900 at 748 E Broadway, Mount Pleasant VE, Vancouver East
00x0x_88gwwgztgnr_0cr0cl_1200x900 at 748 E Broadway, Mount Pleasant VE, Vancouver East
00x0x_raniju1gjh_0hi09v_1200x900 at 748 E Broadway, Mount Pleasant VE, Vancouver East
01414_bn7r34rz6np_0fl0ca_1200x900 at 748 E Broadway, Mount Pleasant VE, Vancouver East

Find Out More Or Request A Showing

Send me a message if you're interested in this property

inquire